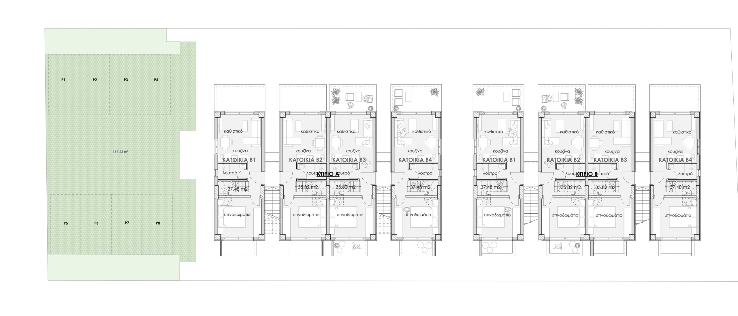
The complex is situated on a spacious plot of 976 sq.m. and consists of two clusters of homes, comprising ground-floor residences and two-story homes with attic. Each residence features a private outdoor space, ensuring ample room for every need and complete privacy.
Gerakini, Halkidiki
976 sq.m.
8 ground-floor units
8 maisonettes
8 spaces
This is a unique residential space that combines architectural elegance with absolute comfort, making it an ideal seaside retreat.
The homes are divided into 8 ground-floor units and 8 maisonettes. The ground-floor residences feature private verandas, while the maisonettes offer private balconies, ensuring privacy and allowing you to enjoy the sun and views at any time of day.
Each of the 8 maisonettes also benefits from its own private parking space, enhancing both convenience and security.
Our new residential complex is located in Gerakini, Halkidiki – a place where natural beauty and modern architecture blend perfectly to offer the ultimate living experience.

Gerakini is located in the beautiful peninsula of Halkidiki and is a true earthly paradise, combining natural beauty, tranquility, and the authentic hospitality of Greece.It offers unique access to the three peninsulas—Kassandra, Sithonia, and Athos—with award-winning Blue Flag beaches, turquoise waters, and golden sand. Here, every day feels like a holiday.
Just 64 km and 50 minutes from Thessaloniki, it’s the ideal place to own your personal retreat just steps from the sea for moments of summer relaxation.